Mögliche Interaktionen




Exposé Gewerbeimmobilie
Chiffresys_214235
BezeichnungTechpark 2 - Vielseitige Gewerbeimmobilie zu mieten
AdresseBerta-Benz-Straße 4, 40670 Meerbusch
Techpark 2
Detail-AnsichtDetail-Ansicht
© OpenStreetMap contributors
Überblick
ObjektartBüro und Praxis
Nutzfläche41,0 m²
VermarktungsartMiete
VerfügbarkeitQ4 2024/ Q1 2025
Objektbeschreibung
Auf dem Grundstück der Berta-Benz– Straße 6 – 6b, werden zwei Gewerbeobjekte und ein Parkhaus errichtet.
Zur Vermietung stehen die Räumlichkeiten des Gewerbeobjekts "Techpark 2 West".

Die Fertigstellung des Objektes wird voraussichtlich im Q4 2024/ Q1 2025 erfolgen.
Das Gewerbeobjekt wird gemäß anspruchsvollen energetischen Standards errichtet.
Dieses zeichnet sich nicht nur durch seine energieeffiziente Bauweise aus, sondern auch durch seine Repräsentative Architektur, die Ihrem Unternehmen eine beeindruckende äußere Präsenz verleiht.

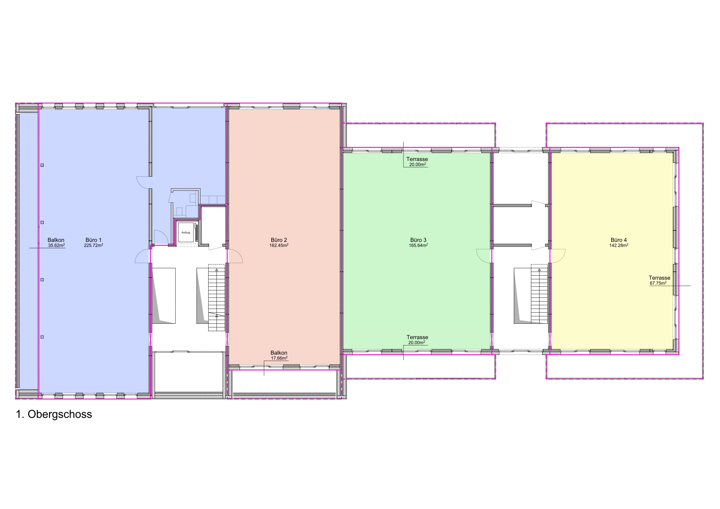
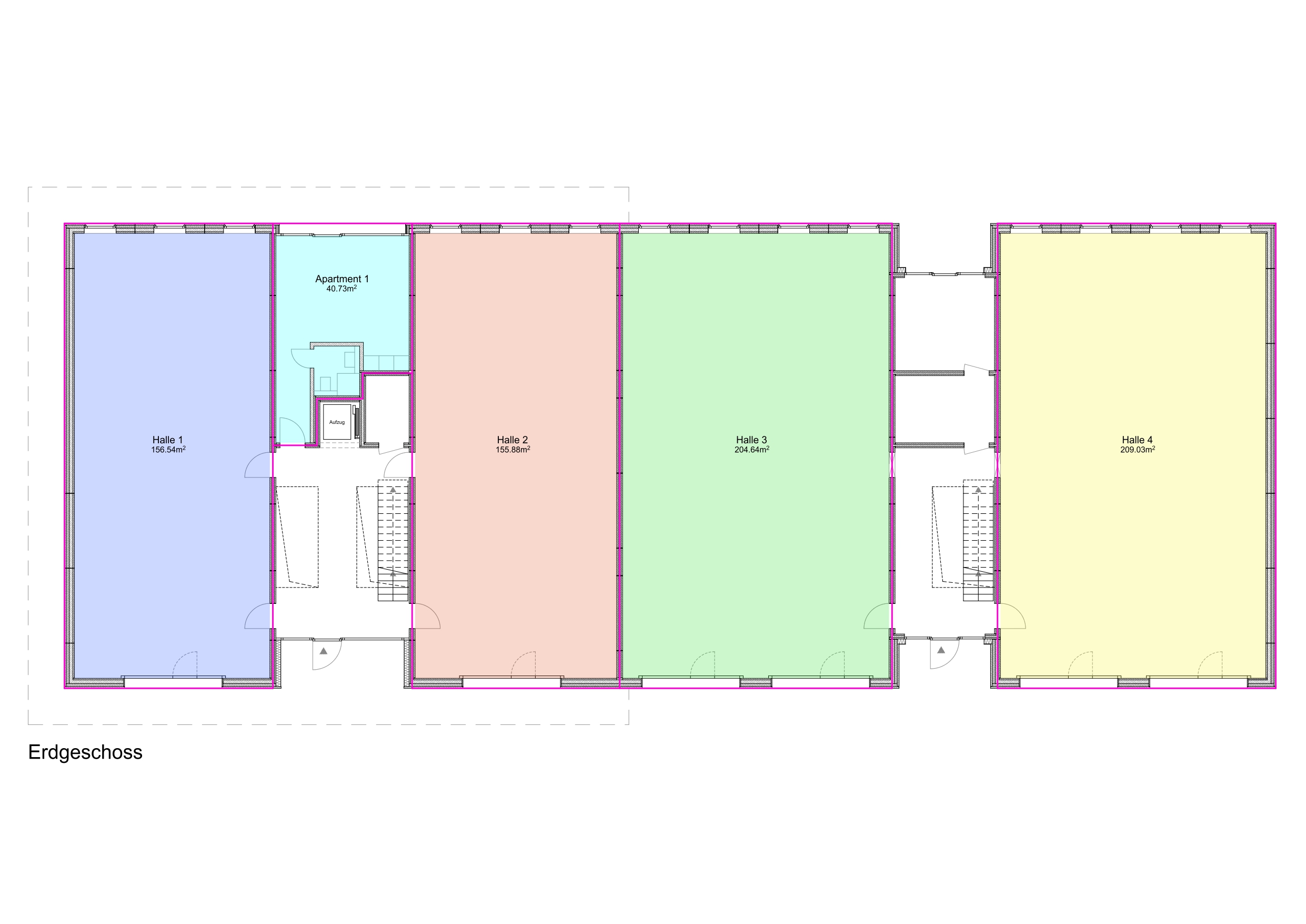
Das Objekt erstreckt sich über insgesamt vier Etagen und ist durch zwei Treppenhäuser erschlossen, wobei eines der Treppenhäuser zusätzlich mit einem Aufzug ausgestattet sein wird.
Eine besondere Eigenschaft dieses Gebäudes ist, dass jede Einheit nur aus wenigen tragenden Wänden besteht, wodurch keine störenden Stützen den Grundriss beeinträchtigen.
Diese tragenden Wände sind in den Grundrisszeichnungen dargestellt.

Nach Absprache können Durchbrüche ermöglicht werden, um mehrere Einheiten miteinander zu verbinden.
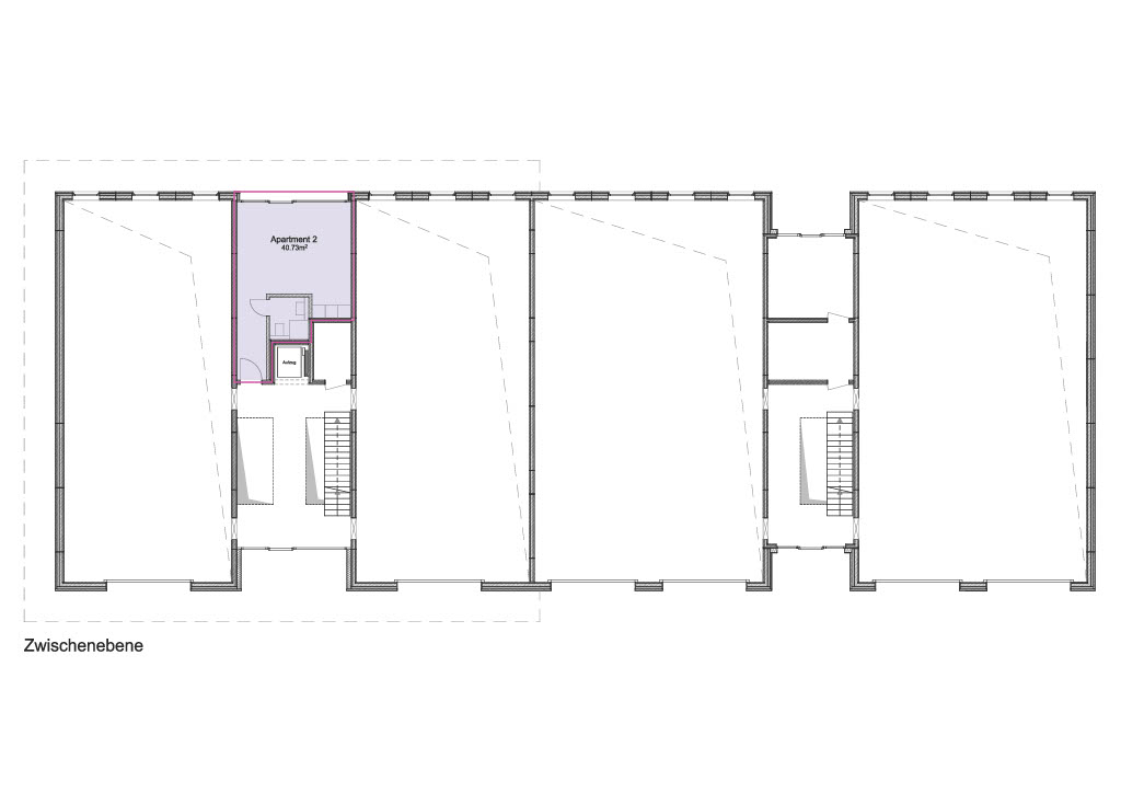
Zudem können bei Bedarf Zwischenebenen in den Hallen eingebaut werden, um die Räumlichkeiten individuell an die Bedürfnisse des Mieters anzupassen. Ebenfalls können die Hallenflächen mittels Durchbrüchen miteinander verbunden werden.
Die Mietflächen werden nach Bruttogrundfläche abgerechnet, wobei Balkone und Terrassen in dieser Berechnung nicht enthalten sind.

Sie haben die Möglichkeit, eine vorgegebene Grundrissvariante und einen festgelegten Innenausbaustandard zu wählen, oder Sie erhalten vom Eigentümer einen Baukostenzuschuss und können die Grundrissgestaltung sowie die Gestaltung der Räumlichkeiten entsprechend Ihrer Corporate Identity selbst gestalten.

Darüber hinaus können die beiden Apartments als Boardinghouse genutzt werden, um Mitarbeitern aus anderen Standorten eine Unterkunft anzubieten.

Die Immobilie ist in insgesamt 8 Vermarktungseinheiten aufgeteilt. Selbstverständlich besteht die Möglichkeit, mehrere Vermarktungseinheiten zu mieten.

Vor dem Gebäude werden 14 PKW-Stellplätze errichtet, die den einzelnen Vermarktungspaketen zugeordnet sind. Zudem werden Fahrradabstellflächen geschaffen.
Das Parkhaus wird in Stahlbauweise errichtet, und auch die Parkplätze im Parkhaus werden den jeweiligen Vermarktungseinheiten zugeordnet. Das Parkhaus wird begrünt und mit Rankpflanzen versehen.

Die Außenanlagen werden insektenfreundlich gestaltet, um der Natur aufgrund der versiegelten Flächen ein Stück natürlichen Lebensraum zurückzugeben.
Details und Ausstattung
NutzungsmöglichkeitenBüroflächen ab 41 m² und
Hallenflächen ab 155 m² verfügbar.

Die Nutzungsmöglichkeiten werden induviduell besprochen.
Nutzungen, die im Rahmen des Bebauungsplans möglich sind, können mittels Nutzungsänderungsanträge realisiert werden.
Bürofläche41,0 m²
Produktions-/Lagerfläche155,0 m²
Nutzfläche41,0 m²
Anzahl StellplätzeJe nach Vermarktungseinheit
Personenaufzugvorhanden
HeizungsartWärmepumpe
Besondere AusstattungAusstattungsmerkmale des Gewerbeobjekts:
- Bau in energetisch hochwertiger Bauweise
- Möglichkeit eines individuellen Innenausbaus mit Unterstützung durch einen Baukostenzuschuss vom Vermieter
- Nutzung der Apartments als Boardinghäuser für Mitarbeiter
- Flexibilität zur Einrichtung von Zwischenebenen in den Hallen
- Heizungsart: Wärmepumpen
- Photovoltaik-Anlagen
- Dachbegrünung
- Aufzug
- Dreifachverglasung der Fenster
- Raffstores als Außenbeschattung
- Klimaanlagen
- Fußbodenheizung
- Insektenfreundliche Außenanlagen
- Stellplätze für PKWs vor dem Objekt
- Fahrradabstellmöglichkeiten

Ausstattungsmerkmale des Parkhauses:
- Möglichkeit zur Installation von Wallboxen
- Photovoltaik-Anlage
- Dachbegrünung
- Fassadenbegrünung
ProvisionJa
Lageplan oder Grundriss
Lage und Verkehrsanbindung
OrtMeerbusch, Rhein-Kreis Neuss

Anbieter
Immobilienmakler - Aruna Immobilien Aruna Immobilien
Frau Jessika Hadyk
Berta-Benz-Straße 2
40670 Meerbusch
Tel: 015237391444
info@aruna-immobilien.de
www.aruna-immobilien.de
Weitere Bilder